摘要:提高消声器设计水平对于提升我国机械质量有重要的意义。插入损失和压力损失是评价消声器消声性能和空气动力性能的两个非常重要的评价指标。本文利用COMSOL软件研究消声单元结构对消声器速度场和压力场的影响。当插入管长度相同时,消声器的出口处气体流速基本相同,位于内插管根部位置出现气流“盲区”。入口内插管的压降随插入管长度的增加而增加,当入口插入管长度为0时,出口插入管长度增加,入口处的声压保持基本不变,出口声压发生变化,且在入口区域,声压逐渐减小在扩张室入口两侧存在最小值。扩张室内,最大声压级发生在出口位置的两侧,且较小声压级区域随出口插入管长度的增加而减小。
关键词:消声器;插入损失;压力损失;COMSOL软件
消声器是安装在空气动力设备气流通道上或进、排气系统中,以降低噪声的装置,它既可以使气流通过,又能有效地降低噪声,是控制噪声的有效工具,是噪声控制技术中应用最多最广的降噪设备,消声器的设计和研制已经得到了国内外各专家的悉心研究。
插入损失是装置消声器前后,在固定测点处的声压级或总声压级、频带声压级之差,插入损失只能反映整个系统包括消声器、管道及噪声源在装置消声器前后声学性能的变化,并不能直接反映消声器本身的消声性能[1]。式(1)中, LP1、LP2 分别为消声器安装前后某给定点的平均声压级,单位为dB。则分别为安装消声器前后固定测点处的声压,单位为Pa。
![]()
(1)
传递损失定义为消声器入口处入射声能与出口处透射声能之比,是入射声功率级与透射声功率级之差,测量上一般是指入口入射声压和出口透射声压之差。
![]()
(2)
(2)式中, Lw1与Lw2与分别为消声器入口和出口端的声功率级,单位为dB,分别为消声器入口和出口端的声功率,单位为W, P1为入射声压,P2为透射声压,单位为Pa。
1 建立模型
消声器的内部结构一般较为复杂,并且加上较高的气流速度,使得消声器内部流场的分布情况非常复杂。因此对消声器的流场分布进行仿真研究,首先需要对消声器的工作条件作如下简化:
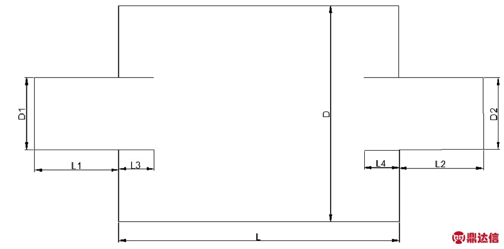
(1)抗性消声器固体区和流体区的物理性能参数均为常数(2)流体为定常流动中的湍流(3)不考虑重力的影响(4)消声器入口流体流速为匀速,无脉冲影响在COMSOL软件中建立如图所示模型,通过改变扩张室的长度和直径、内插管长度来改变模型。消声单元结构研究的基本尺寸为扩张室长度L=200mm,扩张室直径D=100mm;入口长度L1=60mm,入口直径D1=50mm;出口长度L2=60mm,出口直径D2=50mm;L2、L3分别为入口、出口内插管长度(初始长度为0)。

图1 几何模型图
2 设置边界条件
空气经过入口进入扩张室,采用平面波辐射,压力幅值为1Pa。当气流速度低于10m/s时,气流对消声量的影响很小,当气流速度超过30m/s时,气流对消声量的影响则不容忽视。气流速度越高,消声量下降越大,同时,如果气流速度过高,还将使消声器的阻力损失加大。因此,采用湍流边界条件,入口速度为20m/s。出口压力为0,其他边界为壁。
3 结果分析
3.1 速度场分析
表1 不同入口、出口内插管长度尺寸


图2 单腔扩张式消声器内部流体流速分布图
图2为入口流速为20m/s时,不同内插管结构消声器的内部流场分布示意图,可以发现,消声器流场的共同特点是,大部分气体通过具有相同轴心的输入管、内插管和输出管而直接排出。扩张室内其它大部分区域气体流速均比较小,大都属于消声器内气体流速最小值区域,因此气体对扩张室内壁的冲击比较小。相对前后内插管两类消声器而言,当插入管长度相同时,消声器的出口处气体流速基本相同,只是由于内插管位置的不同导致消声器内部局部各点的流速不同,在消声器出口的截面积突变处,由于存在一定的结构尖角,导致此处流体的湍流强度和气体湍流动能较大,由此可能会产生一定的湍流噪声。随着内插管长度的增大,位于内插管根部位置出现气流“盲区”,在这些位置,气体流速很小,有些位置甚至达到了0m/s。
3.2 压力场分析

图3 不同尺寸的插入管压降关系图
由图3可以看出,入口内插管的压降随插入管长度的增加而增加。只有出口插入管时的压降最大。在入口流速一定的情况下,各消声器入口平均全压值相差不大,基本上保持一致。气体从入口进入消声器后,由于扩张室截面的突然变大导致部分气体在内部径向扩散,内部插入管越短,扩散的气体越多,这部分气体经过两个180度的转折以后才从出口排出,在一定程度上增大了气体的能量损失,压力损失主要以沿程摩擦阻力损失为主。
3.3 声场分析

图4 频率为1000Hz时的总压场分布图(Pa) 图5 频率为1000Hz时压级的声分布图(dB)
由图4、图5可以看出,频率为1000Hz时,内插管影响声压场的分布。入口声压保持基本不变,当出口插入管长度为0,入口插入管长度增加,在出口存在声压较大,甚至会出现"回声"现象,在几何模型的中间位置,声压级存在最小值,且较小区域随入口插入管长度的增加而减小。当入口插入管长度为0时,出口插入管长度增加,入口处的声压保持基本不变,出口声压发生变化,且在入口区域,声压逐渐减小在扩张室入口两侧存在最小值。扩张室内,最大声压级发生在出口位置的两侧,且较小声压级区域随出口插入管长度的增加而减小。
4 结论
(1)当插入管长度相同时,消声器的出口处气体流速基本相同,只是由于内插管位置的不同导致消声器内部局部各点的流速不同,随着内插管长度的增大,位于内插管根部位置出现气流"盲区",在这些位置,气体流速很小,有些位置甚至达到了0。
(2)入口内插管的压降随插入管长度的增加而增加。只有出口插入管时的压降最大。在入口流速一定的情况下,各消声器入口平均全压值相差不大,基本上保持一致。
(3)频率为1000Hz时,入口声压保持基本不变。当出口插入管长度为0,入口插入管长度增加,在出口存在声压较大,甚至会出现"回声"现象。在几何模型的中间位置,声压级存在最小值,且较小区域随入口插入管长度的增加而减小。当入口插入管长度为0时,出口插入管长度增加,入口处的声压保持基本不变,出口声压发生变化,且在入口区域,声压逐渐减小在扩张室入口两侧存在最小值。扩张室内,最大声压级发生在出口位置的两侧,且较小声压级区域随出口插入管长度的增加而减小。



